Construcción de casa comunitaria en la Finca Las Raíces

La  construcción de una casa comunitaria en la Finca Las Raíces (Tocancipá, Cundinamarca) es el proyecto que se ha gestado desde hace tres años por quienes hemos conformado el colectivo empírico de trabajo agrícola en la finca.

Durante los últimos tres años hemos encontrado la ubicación ideal para la construcción, hemos considerado distintas ideas arquitectónicas y finalmente, con la ayuda de un arquitecto profesional (Oscar Bernal), consolidamos la propuesta final de los planos arquitectónicos.

En este momento solucionamos los últimos preparativos para dar inicio a la temporada intensiva de construcción en junio de 2016. Durante seis meses participaremos en la construcción como grupo base de trabajo diario los participantes de la Finca Las Raíces y Biocreando Choachí.

La obra y nuestra participación en ella estarán financiados por la familia Rodríguez de Castro, familia guardiana del territorio. 

El gran plan para construir un hogar responde a la necesidad de tener un espacio de uso colectivo, abierto para quienes quieran habitar y prestar su servicio al propósito de la finca. Son varios los territorios en los que una red de apoyo y un equipo de trabajo consistente se han empezado a formar, con la esperanza de acoger grandes sueños en el futuro y conservar la riqueza de nuestros territorios para nuestra descendencia. Y entre todos los proyectos que conjuntamente realizamos con este equipo de trabajo existe la intensión de consolidar un circuito de trabajo voluntario rotativo. Esta idea esta muy ligada a lo que será el tercer proyecto para este año, la Escuela Itinerante. 

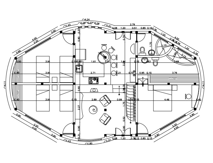
Planos arquitectónicos definitivos

Metas del proyecto y vinculación con Gaia U

Los retos puntuales de este proyecto que quiero vincular con mi proceso de aprendizaje activo con Gaia U son básicamente:

a) organización de una disciplina investigativa, dirigida a técnicas y conocimientos regenerativos aplicados a la construcción y al diseño de paisajes (diseño de keyline, arquitectura bioclimática, manejo de aguas residuales y técnicas de construcción con tierra) 

b) el estructuramiento de un rigor documentativo que acompañe el proceso entero de construcción (diario individual, grupal y archivo fotográfico)

c) la elaboración de un producto audiovisual (corto documental) que pueda difundir la experiencia entera. 

Etapas y fases del proyecto

Esta construcción estará dividida en dos mitades del año. La primera irá hasta justo la mitad del 2016. Estará dedicada a la investigación, planeación y logísitica necesarias para dar inicio a la obra:

- Investigación acerca del diseño de keyline, diseño de ensambles para la estructura, y técnicas de revoques con barro 
- Gestionar el corte de la madera faltante (según el calendario lunar)

-Organizar lugar de secado
- Contratar una retroexcavadora para habilitar la carretera de acceso al terreno
- Instalar un poste de luz, medidor y conexiones de luz
- Instalar tanques de acopio de agua y filtros de agua residual
- Diseñar jardines de acuerdo a las curvas de nivel
- Habilitar baños secos, camping y construir horno de barro
- Realizar presupuesto detallado de materiales
- Habilitar bodega de materiales y herramientas
- Realizar cronograma general de la obra

 La segunda etapa será la obra misma, que irá hasta el fin del año. El proceso de construcción estará dividido en seis fases de tiempos semejantes, dedicados a cada elemento de la casa:

- Construcción de muros de contención y cimientos
- Levantamiento de la estructura de madera

- Montaje del techo y los pisos
- Construcción de muros y ventanas
- Mampostería y Plomería
- Electricidad y acabados

Equipo de trabajo

El equipo de trabajo del cual haré parte a lo largo de todo el proceso de construcción estará compuesto por aproximadamente 6-7 personas que estaremos tiempo completo en la finca:

-Juan Pablo Rodríguez, poeta y agricultor, amigo cercano y representante de la familia guardiana del territorio,

-Santiago López, amigo cercano, viajero, poeta y constructor,

- y yo formaremos el grupo base de trabajo.

- Diego y Gelen Campos (Bioconstruyendo Choachí) serán los guías experimentados en bioconstrucción que nos asesorarán a cada paso de la obra.

- También esperamos tener la ayuda esporádica de voluntarios, también de tiempo completo, y por el momento hemos entablado contacto con una pareja que viene de India, y están interesados en participar durante tres meses (https://pocketsfullofstories.wordpress.com/).