Project specification

          This project is focused on designing and building a multifunctional garden storage shed that practices a couple sustainable themes including passive solar and eco-building. I will enlist the help of  as many people as I can to present the functionality and purpose of building with the environment in mind. Enjoy!

1. Introduction

          In my first project for this output packet I designed a deck and took advantage of local sources of reclaimed building materials to lower the cost both economically and for the environment. My next project was built from a similar theme, but for this one, I wanted to scale things up. As I outlined in my intentions for the year in my “Learning Intentions and Pathway Design”, I scheduled these two building projects back to back. The intention being so that I could take advantage of my inertia in transitioning from one to the other. When I was finished building the deck, I came away from it with a huge amount of personal satisfaction and I was ready to tackle the “Garden Shed”.

          On this build I was keeping mindful of the theme of goals I framed previously in my “Deck Build”. Here are those same projected goals (in italics):

 

I. Build something from scratch, using far less raw materials than I usually would; to study how building with reclaimed building materials is like.

II. In the process, what is it like to learn while teaching. Learning how to build with reclaimed materials while incorporating my own traditional building skills for the purpose of teaching someone else the efficient and responsible way to go about building certain things.

III. Research how to find and properly procure recycled, re-processed, reclaimed, recovered or salvaged building materials.

 

IV. Learn how to share responsibility. Sharing responsibility is a little difficult for me, either I must obtain all responsibility or none at all, but I wish to change that so that I can create collaborative dynamics that are focused on the group rather than an individual. 

 

V. Learn how to positively receive help or suggestion. This is an edge for me to push. While growing up I was always told how to do something without myself first being able to try and figure it out alone. Now when others offer suggestion or help, I tend to get a little too defensive, now I would like to change that and welcome help or suggestion.

 

VI. Working with others is very enjoyable for me. Sometimes while working with others on building sites, a weakness that I have is delegating jobs in an efficient manner so that we may get the job done or reach a goal quickly and effectively. This is something I would like to improve.

          I kept these outcomes in mind as a theme so that I could grow personally and professionally from the projects.

3. My Tumblr for photos!

Click HERE to view pictures of my recycled shed build. The pictures of this project are located in the first album located at the top of the page linked, the album is titled 14th Feb 2013

2. The Build

          In the picture to the right hand side of the page, it shows the final floor plan of the building. Use this as a reference to review while I describe its functionality.

           The building itself was a test for me to see how far I could take this theme of building using recycled materials. Most of my building projects from now on will be built upon the shoulders of this one. The design of this project was probably the most fun for me. With the help of others I was able to finish the building in very little time and I was able to share some knowledge as well. All in all I was very pleased with the result of this project. It strengthened my confidence in building and helped spark my interest in building with recycled materials.

           The picture to the right shows you the design of the shed. The building itself is four feet deep and eight feet wide, just enough to utilized only one 4’x8’x5/8” plywood panel, which I salvaged. I designed the foundation like this to keep costs and waste low. There are two rooms, the one on the left is about 5 ½’ wide and I used to store tools and many other garden necessities. The room to the left is roughly 2 ½’ wide and was built for the purpose of storing, curing and dehydrating food. Certain things like onions for example have to be cured to extract the richest flavors; here is where I will do that. On the front it is roughly 8 ½’ tall and on the back it is roughly 7 ½’ tall. This incline is just enough to keep litter and rain from sticking to it. The roof itself is constructed out of five plexy-glass panels and was the most expensive and environmentally un-friendly part of the structure. I realized that in some cases I can justify using new materials for the sake of quality. I chose to use plexy-glass because of its transparency, a key feature in the design. With this style roof I can use the sun’s radiation to both light the tool room and heat the food processing room. As I stated earlier I could also attach a gutter and filter to the low end, place a tank at ground level and harvest rainwater to use for the low precipitation months. Designing this type of structure was really fun for me and I hope to be able to use it as a template for similar builds in the future. I would like to copy this design and market it to others to raise awareness of the benefits of building with recycled materials. 

4. Colaboration

          The collaboration of my peers was the driving force that helped form this project.  As I have mentioned before, one of my themes was to include others in my projects so that I could teach how building with recycled materials is often better, as opposed to building with all new materials. Throughout this build I had various helpers. Having this help really made me focus on why I was doing it. I had people who had no prior experience in building with recycled materials and I believe I made a difference in the way they will approach builds in the future. Those included consisted of my Brother, Uncle, Mother and the rest of my family, and friends Alysha and Beto, a sincere thank you.

5. Reflections of the build

          The project itself opened up to me a perspective that I barely new existed and I hope to be able to pass that along to those I work with in the future; this is why I created this project, to calibrate that internal inspiration. Thank you to all that helped me achieve this goal! Looking back at what I have created gives me a sence of how willing those around me are to lend a hand, and that all I need to do is simply ask. I gleaned a lot from this build and i am very thankful.

Original Profile Plan

6. picture above

          This was the original profile plan for the shed. At the moment I will not be adding the reainwaer harvesting system, this is something i would like to complete at a later time due to monitary restrictions. 

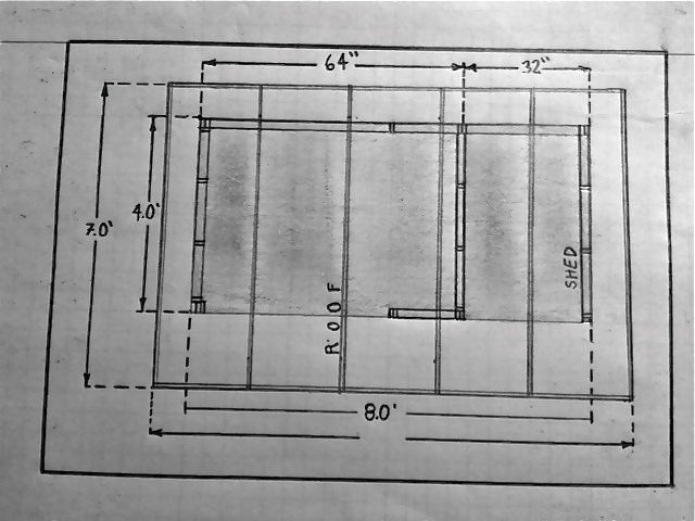
This is the current shed floor and roof plan

7. picture above, current shed plan

          This is the final floor plan design, it shows the ultimate product that I created, its dimentions and other attributes.

8. A tired day's journal

          I find working with my hands so satisfying. building comes so naturally to me, I can't explain it. Right now I am a litle hesitant to follow a path in eco-friendly construction, because like any other construction, it can wear one's body out quickly. I think for now I will pursue my path in design and gardening, but I will always be the crafty builder as well. Final thoughts before sleep overtakes me for the night. 

Final profile plot

9. Picture above, final profile plot

          This is the final profile plotting plan for the garden shed. 

Garden shed youtube video

After the job

          Building this shed was really skill building for me, I learned so much and I am so grateful to my friends for comming and letting me lead them. Now I am done with 90% of it, it feels really good being able to show people what my hard work can look like. I feel like I am doing so much more than most of my friends. Maybe that is a little arrogant but it might be true. I just feel so acomplished, even though it is just a litle building.